
















Juerg
Doppelhaus in Hamburg, Klein-Flottbek
Leistungsphasen 1-4+, in Zusammenarbeit mit Publicplan Architektur + Gestaltung
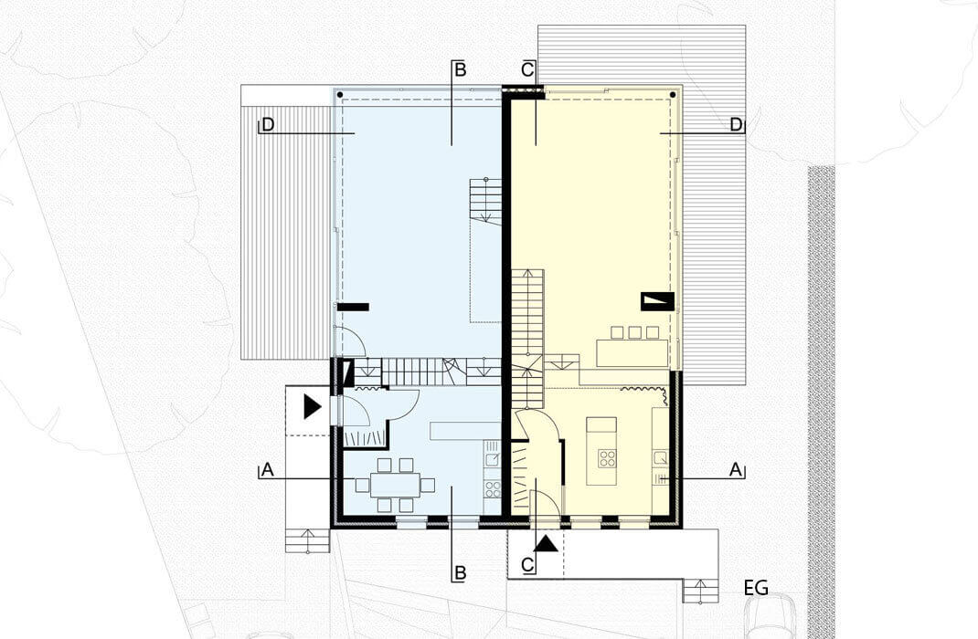
Das neue Doppelhaus soll zwei Familien mit mehreren Kindern ein neues zuhause bieten. Das Baufenster erlaubt eine Kubatur von 12x15m Grundfläche, was zu je einer Wohneinheit mit Ost- und Westausrichtung führt. Um jedoch beide Wohnungen auch an die gegenüberliegende Sonnenseite anzubinden, ist die Wohnungstrennwand im überhöhten Dachgeschoss um 90 Grad gegenüber dem EG/OG gedreht.
Zwei hintereinander angeordnete einläufige Treppen erschließen als Himmelsleiter die Obergeschosse und gewähren eine diagonale Blickachse durch alle Wohngeschosse. Die split-level Anordnung der Küche zum hohen Wohnraum bietet die Möglichkeit eines voll belichteten Souterrain Raumes, der als Arbeits- oder Gästezimmer genutzt werden kann.
Das archetypische Volumen eines klassischen Klinkerhauses mit Steildach schwebt scheinbar über dem als verglaste Fuge ausgeführten Wohn- und Souterrain Bereich.