Jumphouse SCSH43

SCSH43

Zur Übersicht

Projektinfos

SCSH43 – „Jumphouse“

Die Transformation der Splitlevel-Wohnung aus den 1960er Jahren begann mit dem Anspruch, Raum neu zu ordnen, Funktionen zu bündeln und Großzügigkeit dort zu schaffen, wo zuvor kleinteilige Strukturen dominierten. Gleichzeitig sollten die klare Leichtigkeit der eleganten 60er-Jahre-Architektur mit weiß gestrichenen Sichtmauerwerkwänden erhalten bleiben. Entstanden ist ein offenes Wohngefüge mit subtilen und ungewöhnlichen Details, ohne das Mid Century Erbe zu verleugnen.

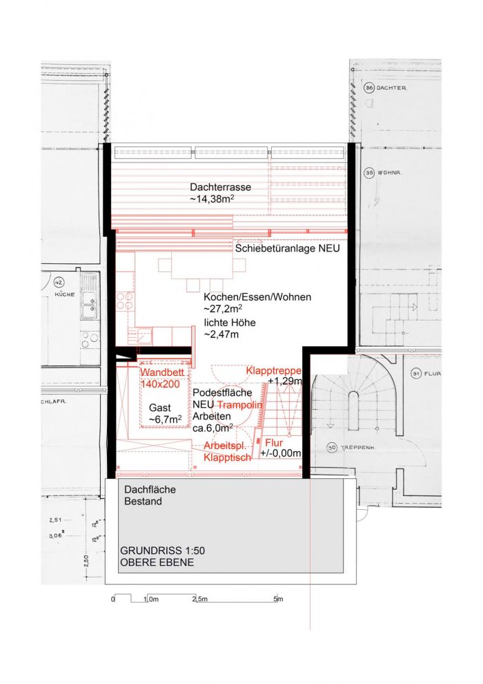
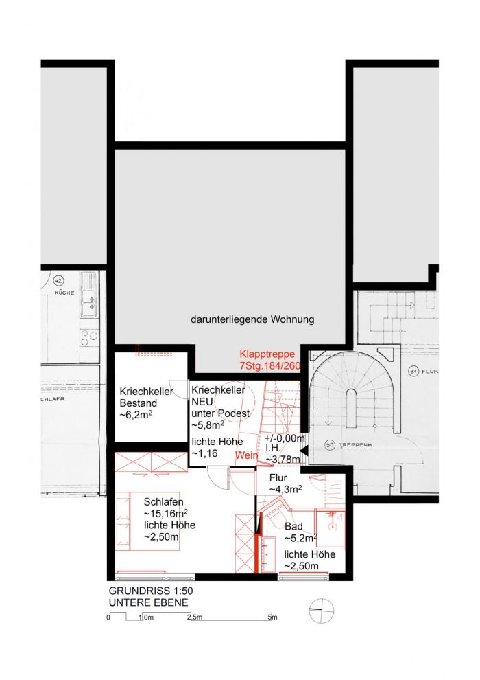
Im Zentrum des Entwurfes steht die obere Splitlevel-Ebene. Ein neu konstruiertes Podest erweitert die Wohnfläche um sieben Quadratmeter und ersetzt frühere Verkehrsflächen des Flures; darunter entstand ein unauffällig eingebundener Kriechkeller. Die Bauherrin trainiert regelmäßig auf einem Trampolin und wünschte sich einen Ort der Aufbewahrung für das Sportgerät mit 1,25m Durchmesser. Dieser war mit Schaffung des Podestes schnell gefunden: bündig in den Boden eingelassene, halbkreisförmige Klappen erlauben schnellen Zugang, ohne das Tampolin bewegen zu müssen. Griffmulden aus dem Yachtbau im Parkett helfen beim Öffnen und unterseitig an den Klappen angebrachte T-Profile mit Griffaussparung verhindern ein Durchbiegen in geschlossenem Zustand.

Die neue Splitlevel-Treppe aus (brandschutzkonformem) Stahl ist mit Stäbchenparkett belegt und lässt sich Dank zweier Gasdruckfedern butterweich vollständig nach oben klappen, um Stauraum freizugeben. Die Absturzsicherung übernimmt ein Designheizkörper mit transparenten Lamellen.

Der Rückbau der ehemals abgetrennten Landhausküche und das Entfernen der Trennwand ließen ein durchgehendes Raumkontinuum entstehen, das Küche, Essen, Wohnen, Arbeiten und Gastbereich erstmals selbstverständlich miteinander verbindet. Besonders prägend ist die neue Terrassenverglasung: Wo früher eine kleine Glastür saß, öffnet heute eine großflächige Schiebetür den Essbereich weit nach außen und lässt den Raum deutlich größer wirken.

Die neue raumhohe Einbauküche befindet sich nun im Hauptwohnraum neben der Terrasse und nutzt mit Sockelschubladen jegliches Aufbewahrungspotenzial. Als Ergänzung steht ein mobiles Anrichtenelement mit drei Auszügen zur Verfügung, das dank zweier ausklappbarer Ergänzungsplatten zusätzliche Arbeitsflächen von 60 bis 140cm Länge bietet. Eine integrierte Kabelaufwickelautomatik mit fünf Metern Kabellänge erlaubt flexible Positionierung über die gesamte obere Ebene hinweg.

Entlang der Terrassenverglasung begleiten Sitzbänke sowohl den Ess- als auch den Terrassenbereich. Zur Küche hin bildet die Bank eine geschützte Sitznische als Ort zum Lesen und Entspannen. Die Terrasse selbst erhielt einen Belag aus dauerhaften Kebony-Holz und eine neue Bepflanzung der bauzeitlichen Pflanztröge.

Der Arbeits- und Gästebereich bleibt trotz der Offenheit klar definiert. Ein zweiteilig klappbarer Sekretär macht den beleuchteten Homeoffice-Arbeitsplatz unsichtbar, sobald er nicht benötigt wird. Ein im Wandschrank integriertes 1,40m breites Klappbett mit Beleuchtung und Regalfächern verwandelt den Raum bei Bedarf in ein vollwertiges Gästezimmer.

Auch die untere Eingangsebene erfuhr eine pragmatische Umstrukturierung. Der minimierte Flur erschließt einen Garderoben- und einen Regalschrank mit Weinkühlschrank. Die großen Spiegel-Faltschiebetüren erweitern den Raumeindruck und bieten unerwartete Blickachsen durch die gesamte Wohnung. Eine Durchreiche mit zwei farbigen Klappen erleichtert von der Treppe aus die Beschickung des Kriechkellers. Ein beleuchteter Nischenschrank mit orangefarbenem Bulletinboard begradigt die geneigte Wand zum Bad und setzt einen warmen Akzent. Bad und Schlafzimmer erhielten eine neue Erschließung vom niedrigeren Flurbereich aus.

Im Schlafzimmer blieb die frühere Zugangstür erhalten und ermöglicht heute den Zugang zum Kriechkeller sowie dank neuem Bullauge eine Blickachse unter dem Arbeitsplatz hinweg zum Wohnraum. Das Bad erhielt einen vollständig neuen Grundriss mit warm-grey Wandflächen und einem umlaufenden weißen Band aus Wand- und Spiegelschränken - auf Fliesen wurde komplett verzichtet. Die großzügige Dusche ist fugenlos und pflegeleicht mit weißen PVC-Platten verkleidet.

Die gesamte Gestaltung folgt einem zurückhaltenden Farb- und Materialkonzept in „skandinavischem Stil“. Industrieparkett aus Eiche Hochlamelle, weiße Möbelflächen und dunkel gebeizte Eichenoberflächen formen ein warmes, zeitloses Ensemble. Einzige Farbakzente sind die orangenen und grauen Wandbeschichtungen aus Bulletinboard, einem natürlichen Pinnwand-Linoleum-Material. Die neuen Fenster, Heizkörper sowie sämtliche Wand-, Decken- und Bodenoberflächen führen die Eleganz der 60er-Jahre-Architektur weiter, ohne ihren Charakter zu überlagern. Ein integrales Lichtkonzept mit 3-Phasen-Schiene, dimmbaren Spots und ergänzenden Wand- und Deckenleuchten bietet variabel steuerbare Lichtstimmungen.

Aus energetischer Sicht erfuhr die Wohnung eine erhebliche Verbesserung: durch Innendämmung der unteren Ebene, neue Kunststofffenster mit Dreifachverglasung sowie eine neue Dämmung des oberen Daches. Es konnten mit Hilfe eines Energieberaters entsprechende Zuschüsse in Anspruch genommen werden.

Die mustergültige Ausführung der umfangreichen und teils prototypischen Tischlerarbeiten wurde von der Tischlerei Innenmöbel Ralf Staben aus Henstedt-Ulzburg verantwortet, die bereits frühzeitig in die Detaillierung miteinbezogen wurde.

„Jumphouse“ zeigt, wie eine verwohnte 70qm Splitlevel-Wohnung durch präzise Eingriffe neue Großzügigkeit und 10% mehr Wohnfläche gewinnt – funktional, flexibel, dynamisch und mit einem leisen Trampolinsprung in die Zukunft.

Close